No items found.
1
/
9

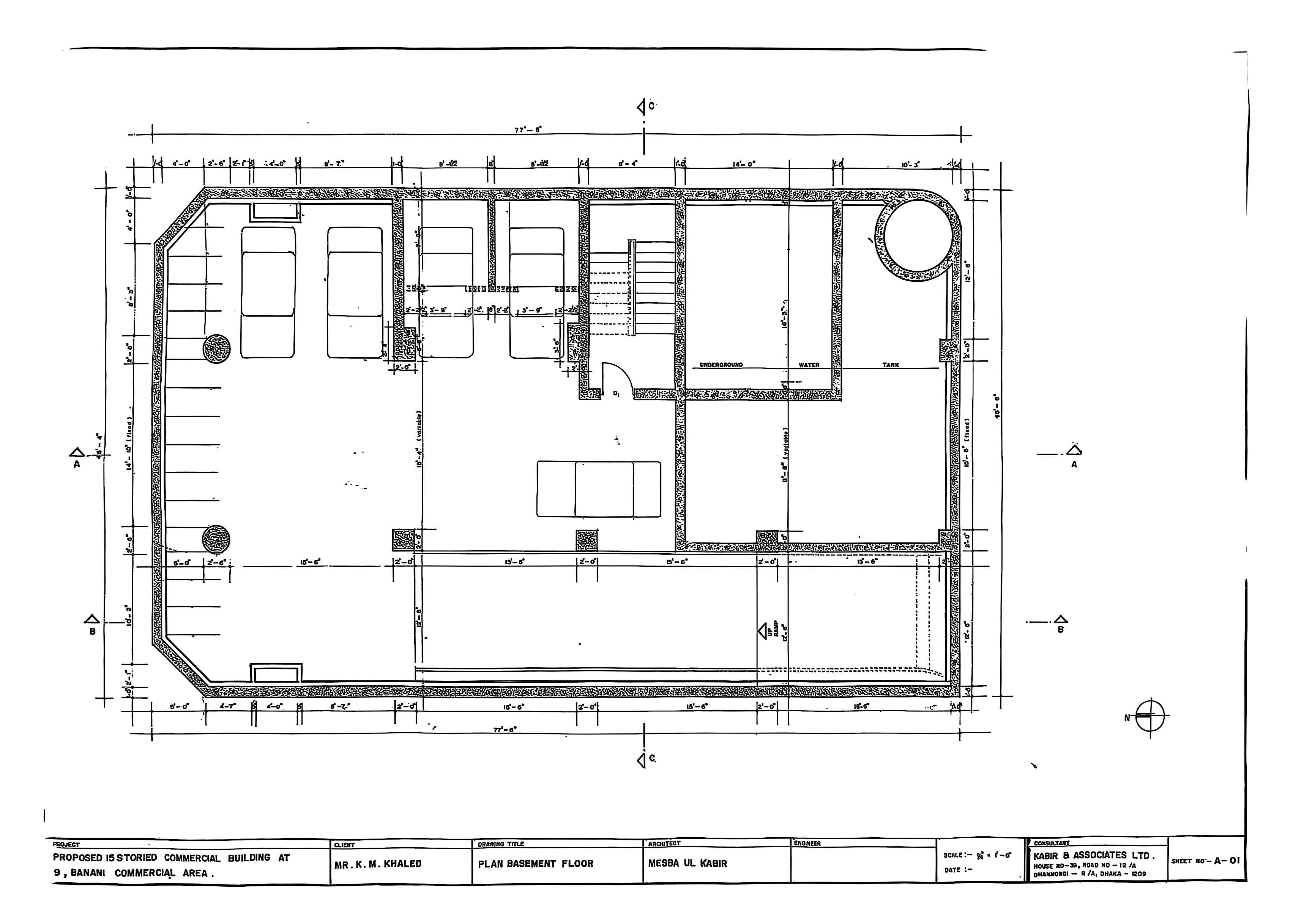
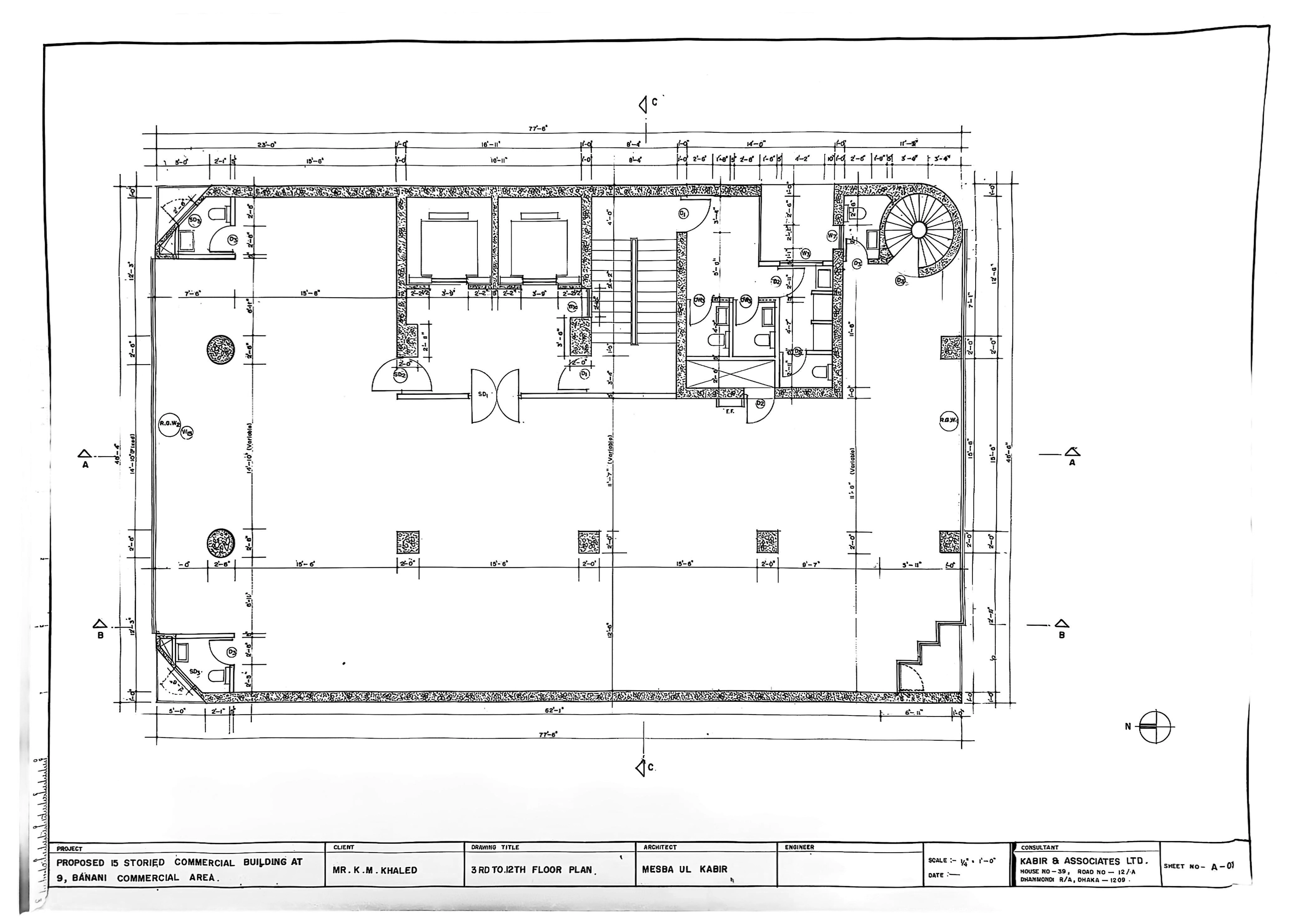
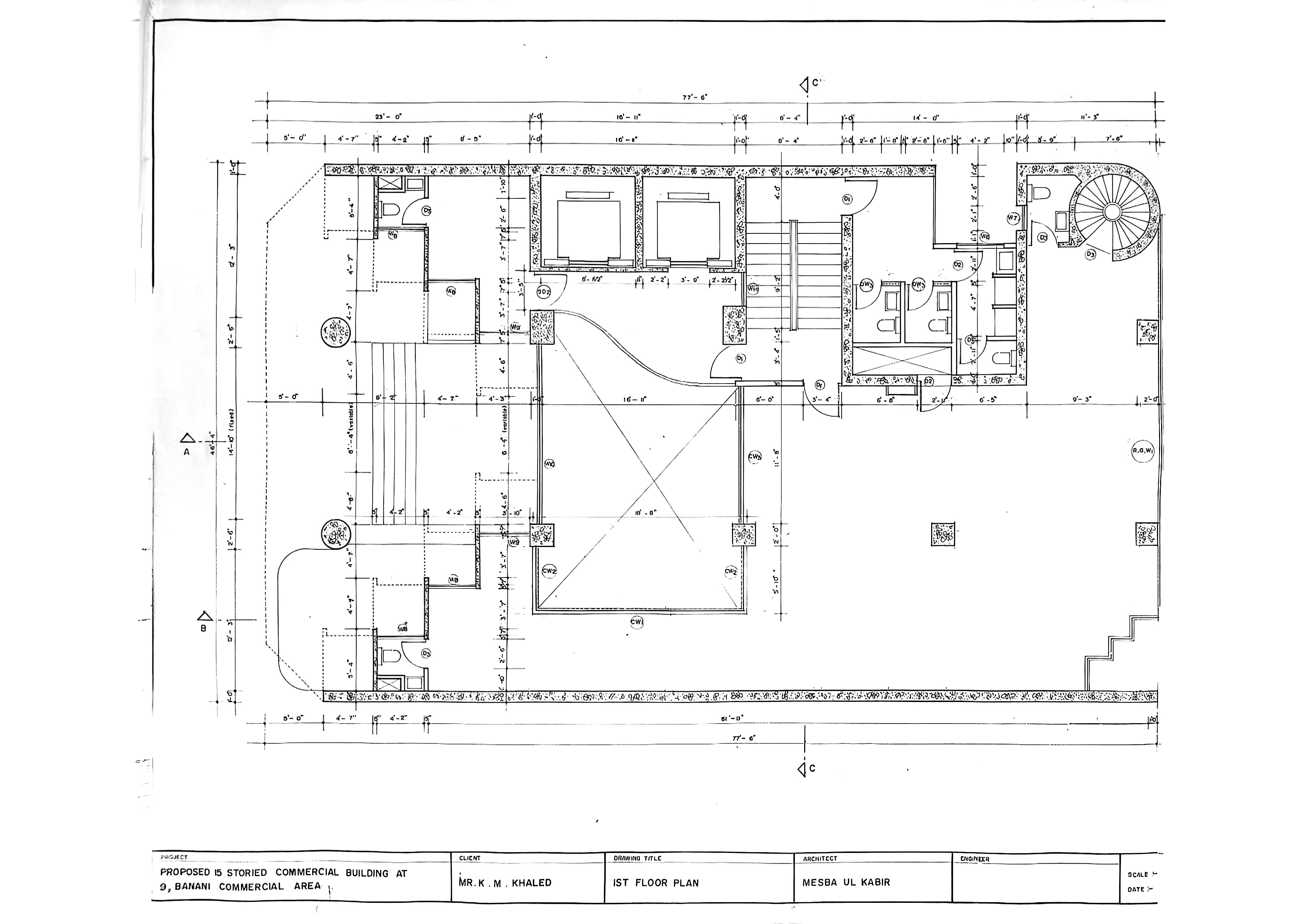
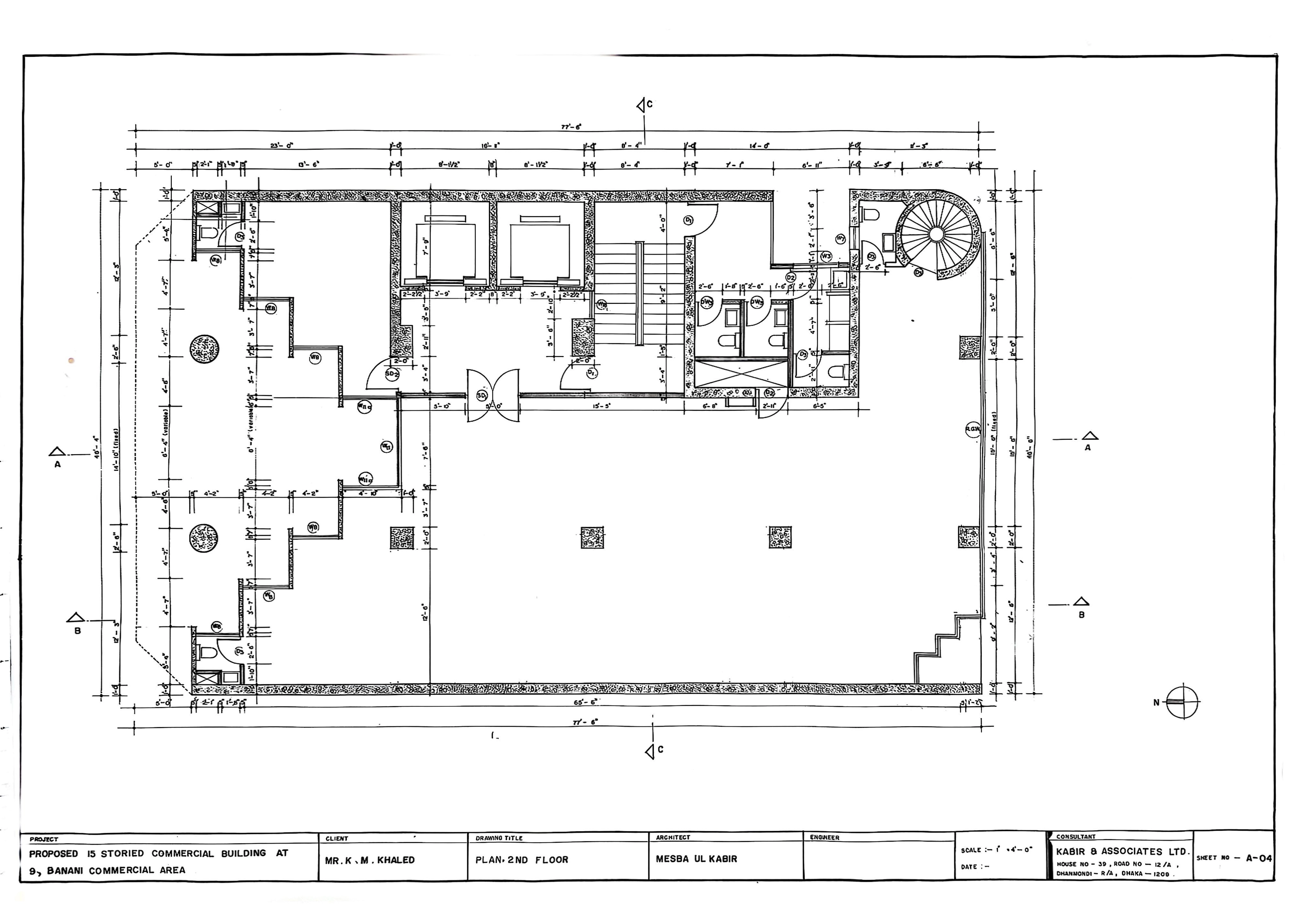
PRIME ASIA UNIVERSITY

Complate Date

Complete 1992

Location

Plot-19,Road-17,Banani Commercial Area,Dhaka.

Client

K M Khaled

Built Area

54900 sq ft

Achitects Design and Implementation

KAL

About Project

Architect : Mesba Ul Kabir