No items found.
1
/
9

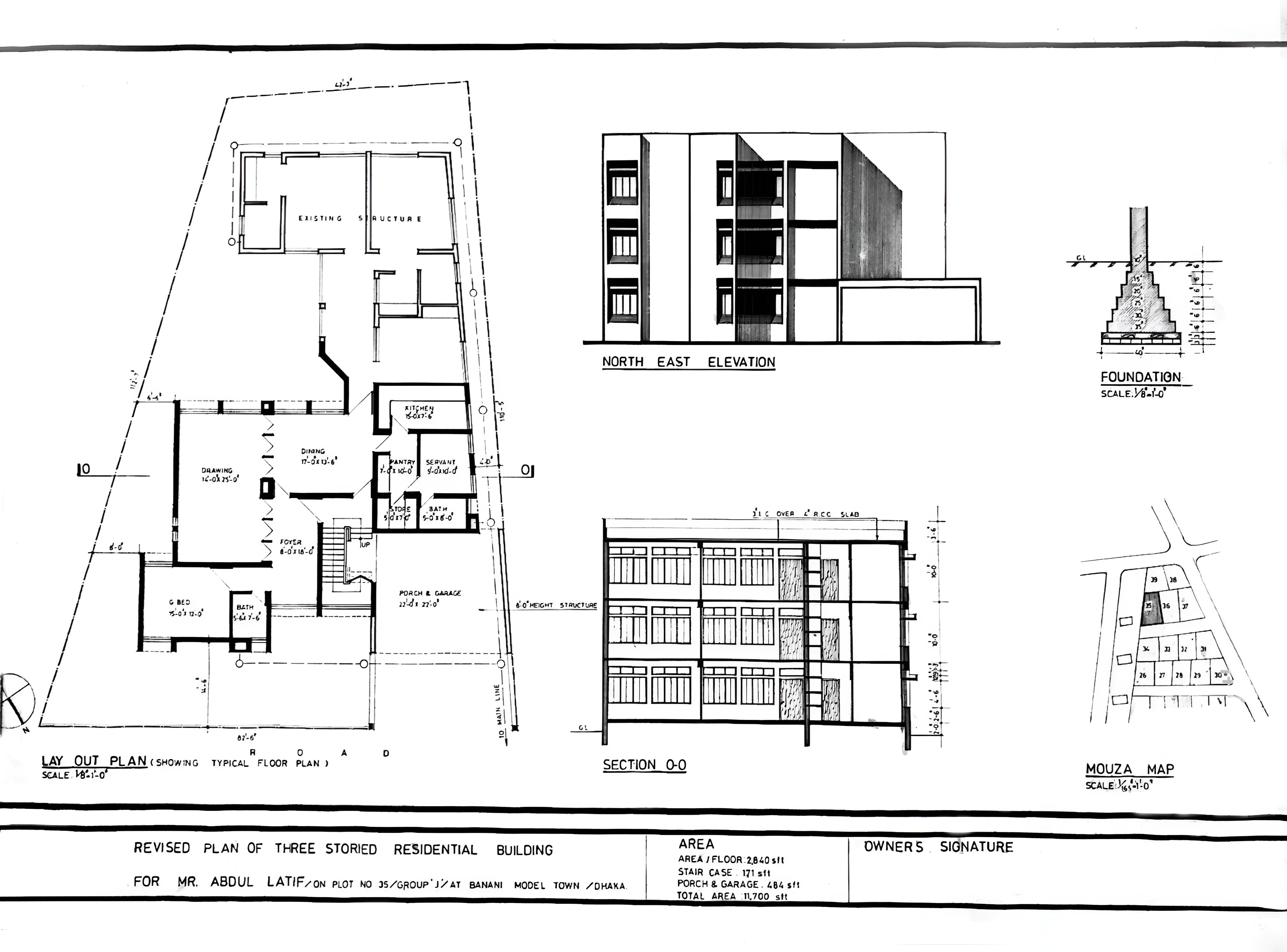
Extension Mr. Abdul Latif

Complate Date

Location

plot no " 35 ,Group : J , Banani model Town / Dhaka

Client

Mr. Abdul Latif

Built Area

Total 11,700 sqft

Achitects Design and Implementation

KAL

About Project