No items found.
1
/
9

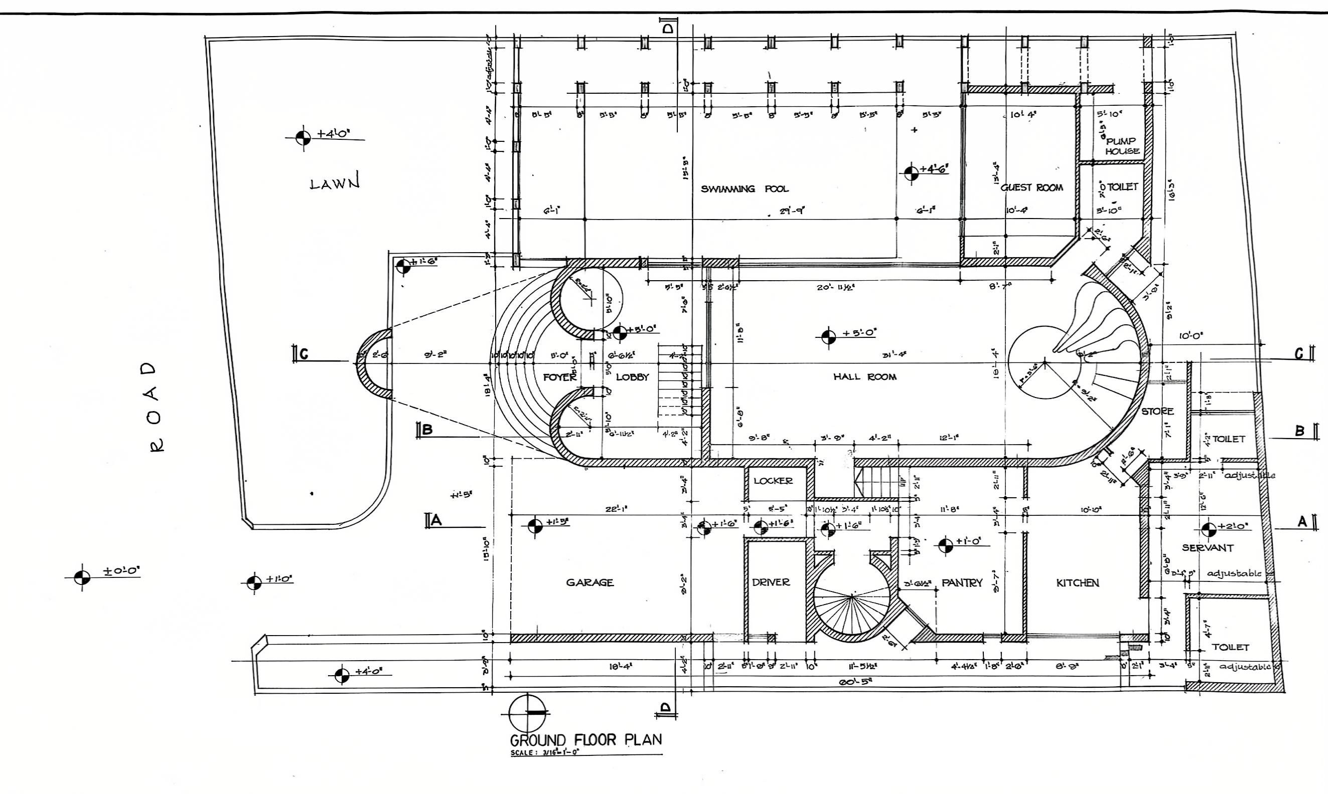
ENCOLSE SWIMMIMG POOL (MALDIVES EMBASSY)

Complate Date

1999

Location

AT ROAD –4, HOUSE-20 BARIDHARA.

Client

Abdul Mannan

Built Area

5000 sq ft

Achitects Design and Implementation

KAL

About Project

BACKGROUND OF THE PROJECT AND CLIENT:

First met him at a monthly meeting at the Hotel Sonargaon of the Rotary Club at Dhaka North. Mr. AbdulMannan is a businessman with a sharp memory. He was the owner of a big travel agency and other businesses. He has only one daughter, and his wife Nilufer was an artist who performed dance before marriage. Later he was appointed Deputy Minister of Bangladesh Biman and District Governor of Rotary Club Bangladesh.

Being an important person, he wanted a grand hall room with a swimming pool as a part of the hall room with other facilities for big gatherings.

 

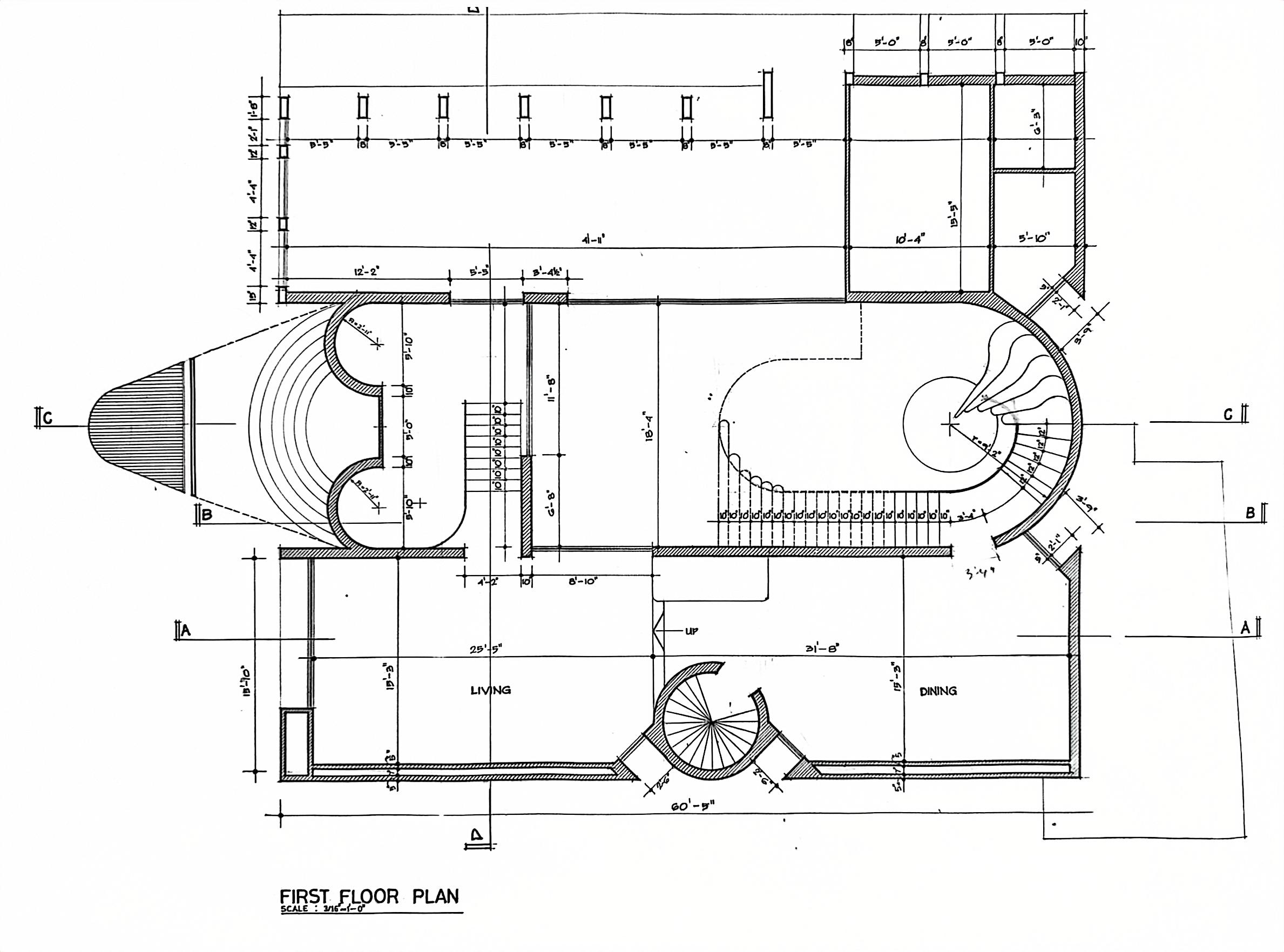
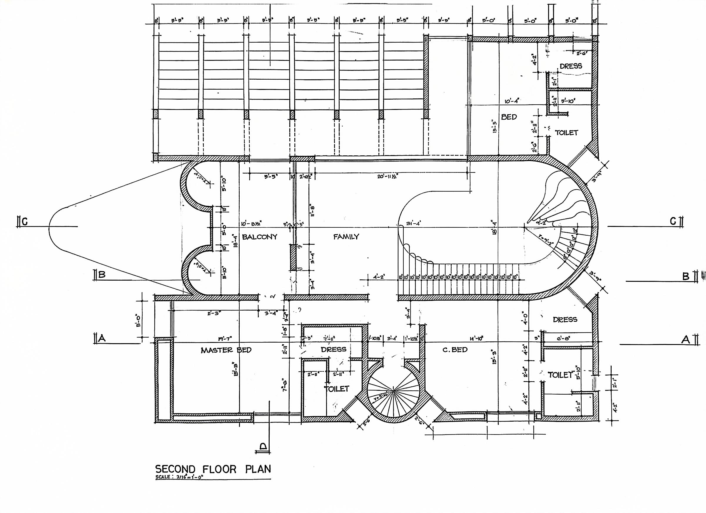
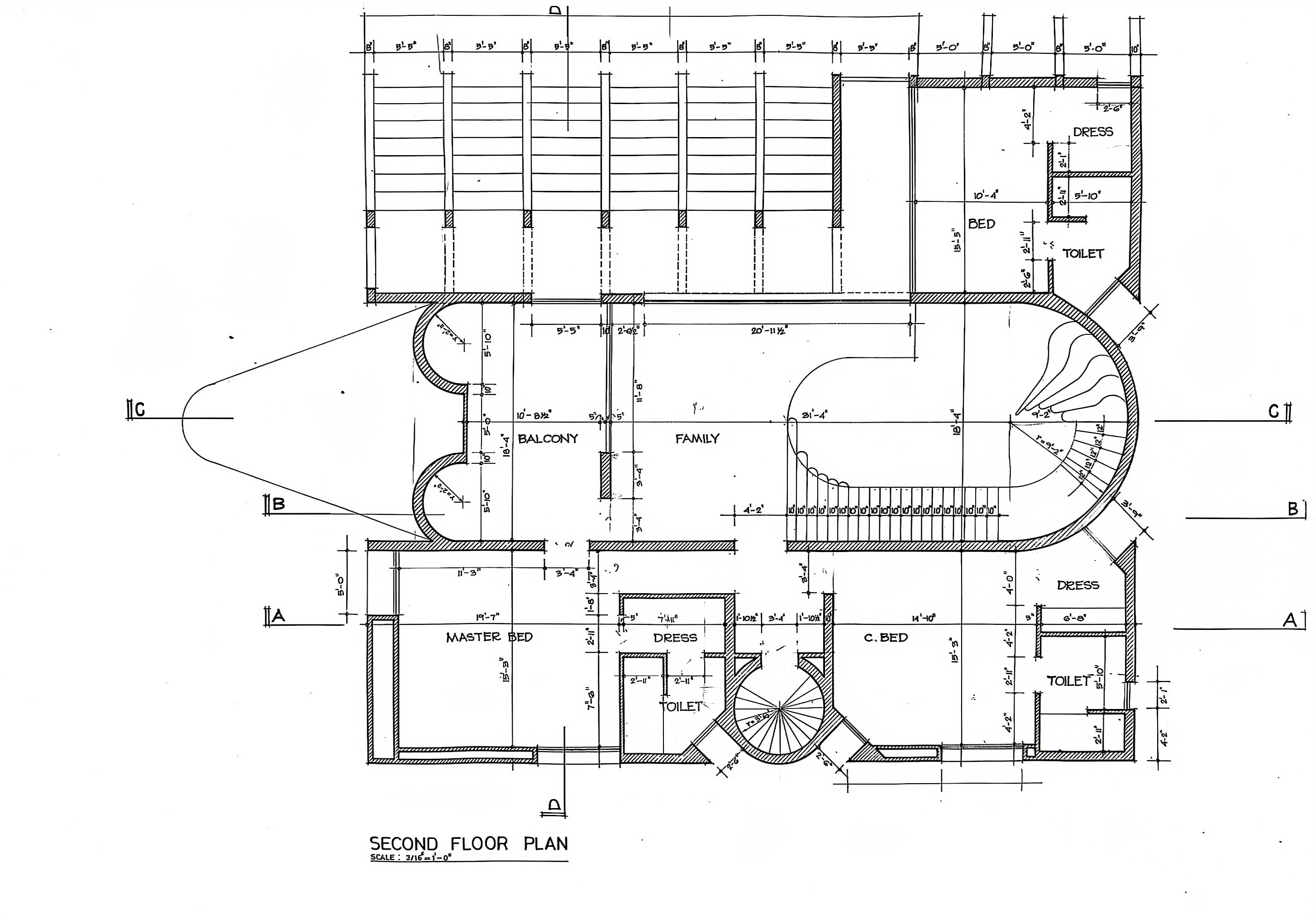
DESIGN CONCEPT:

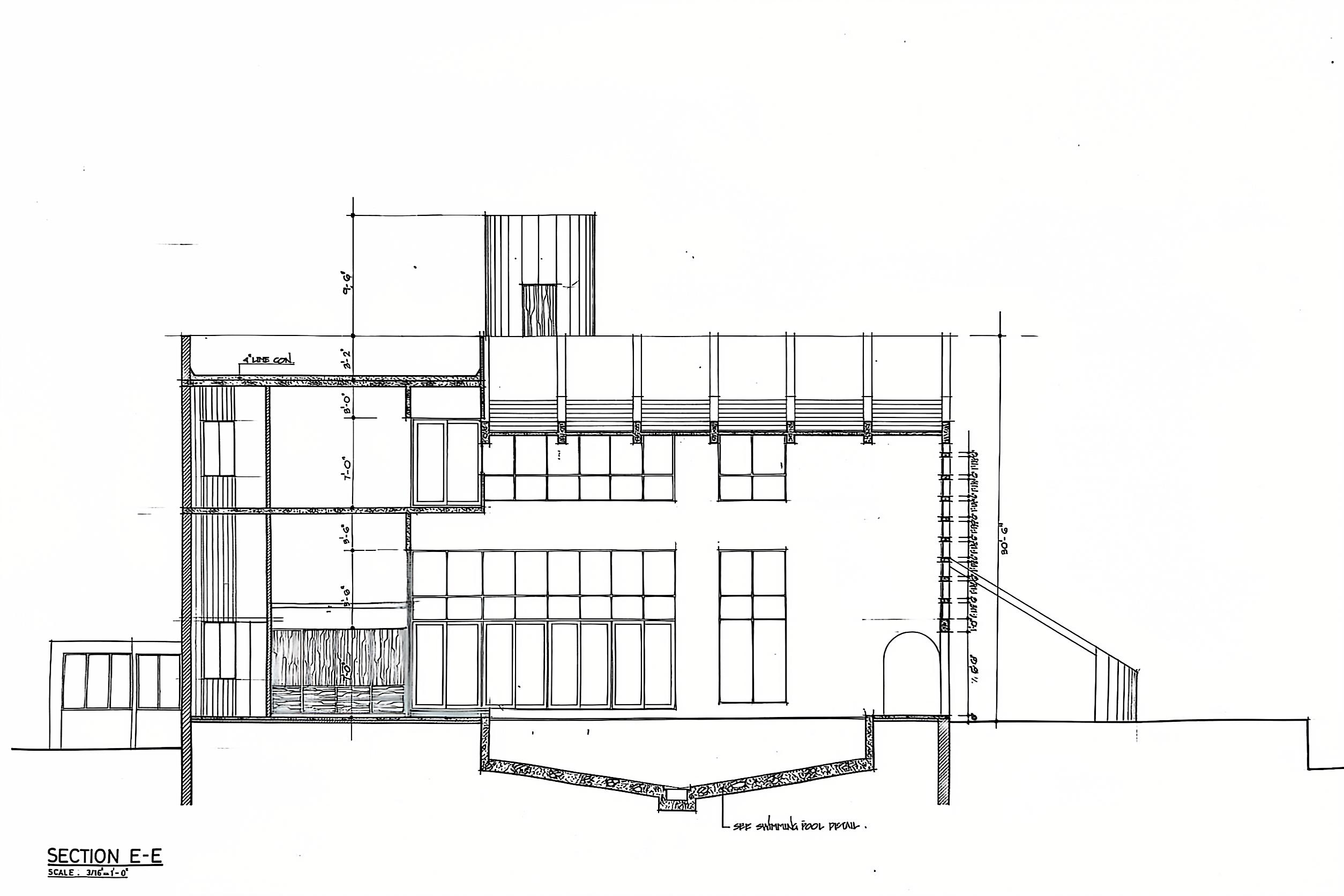
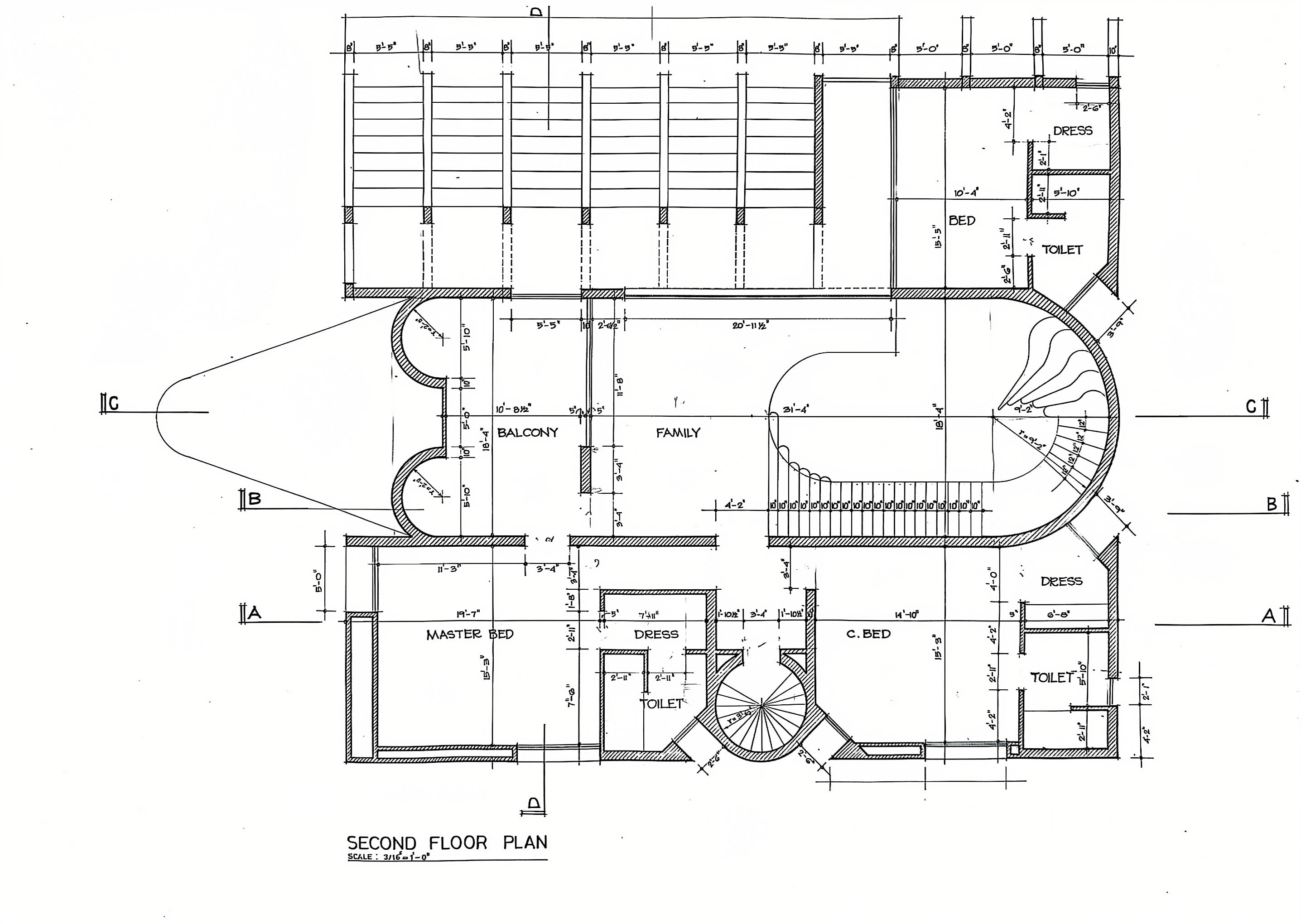
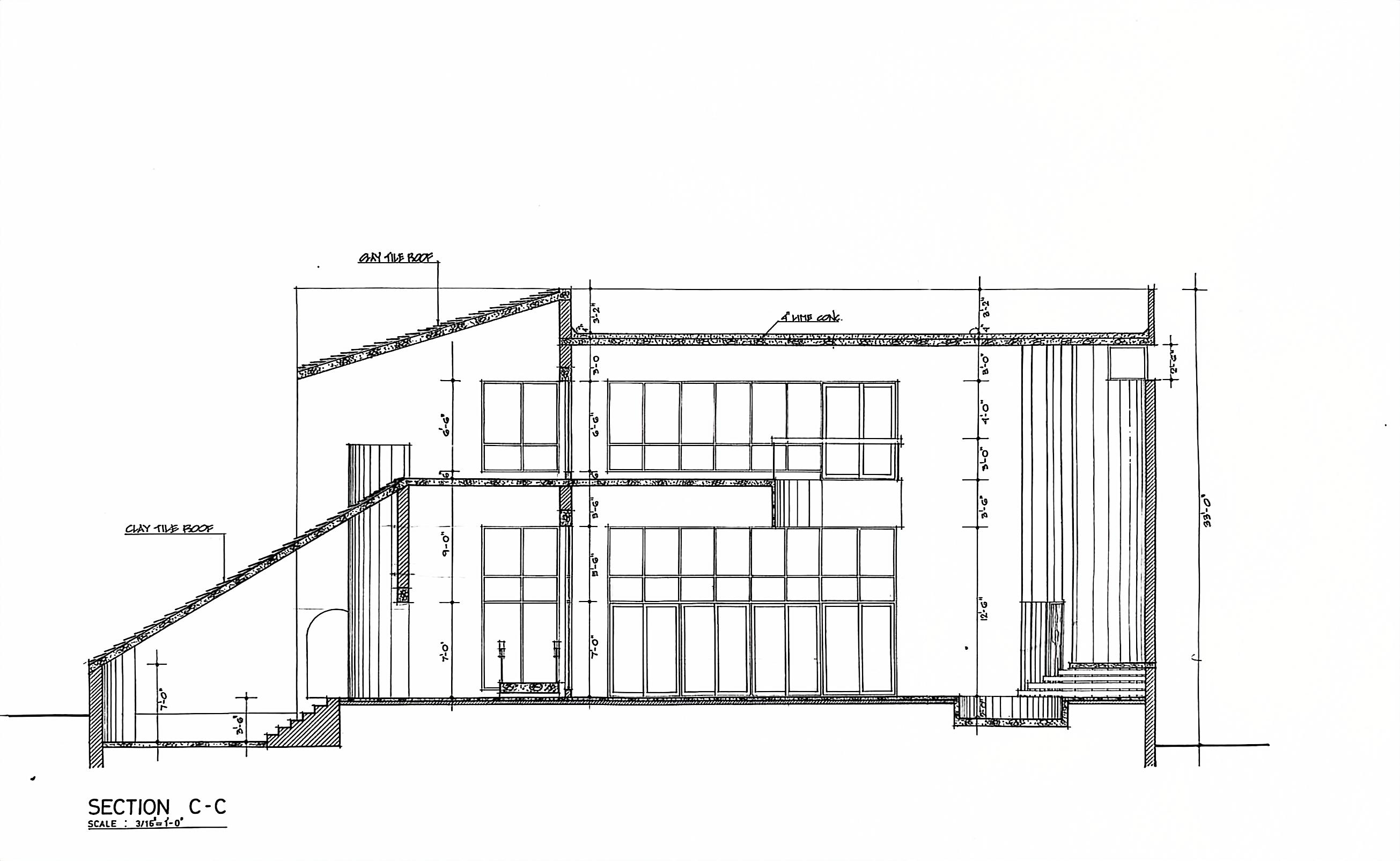
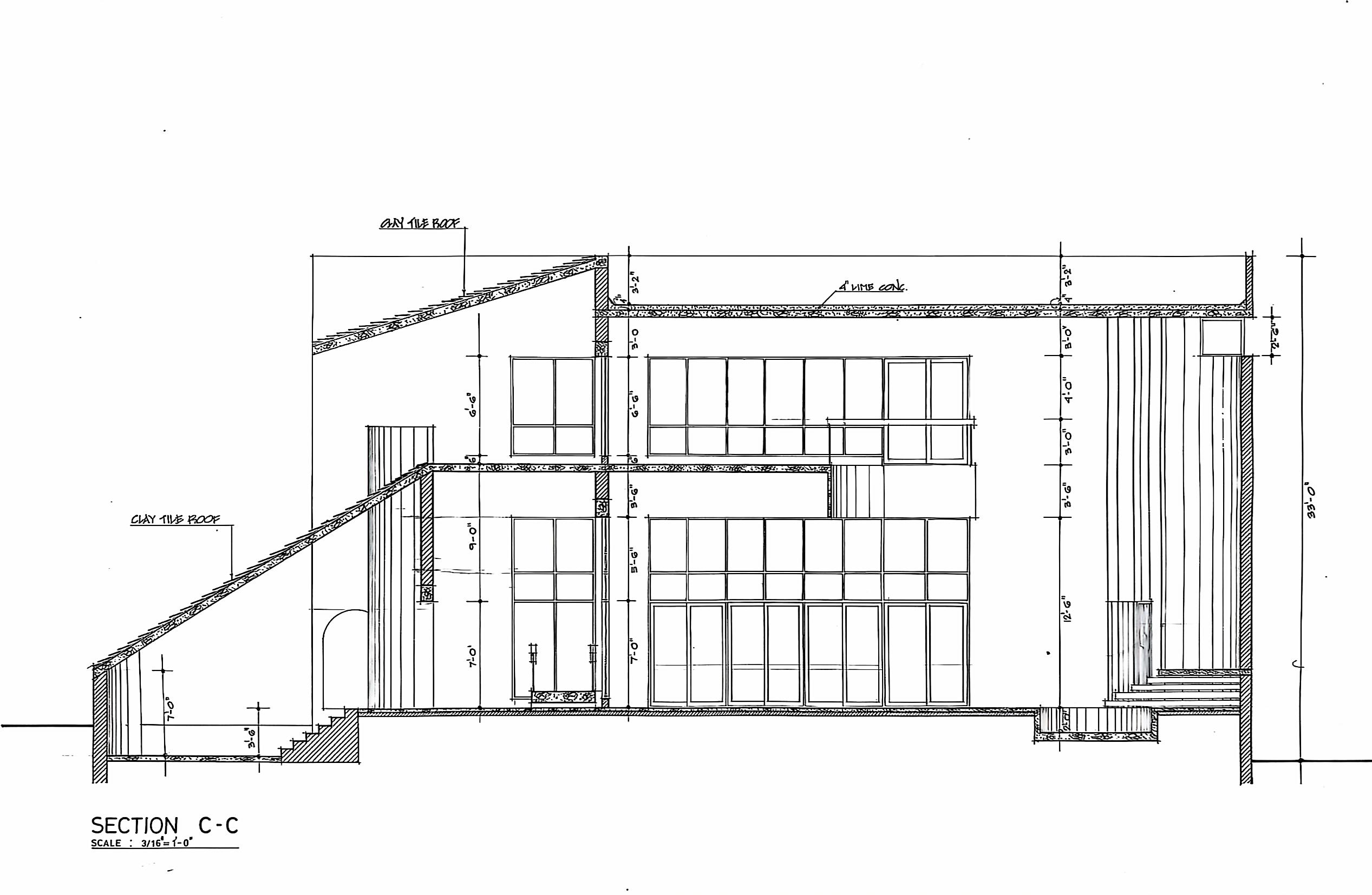
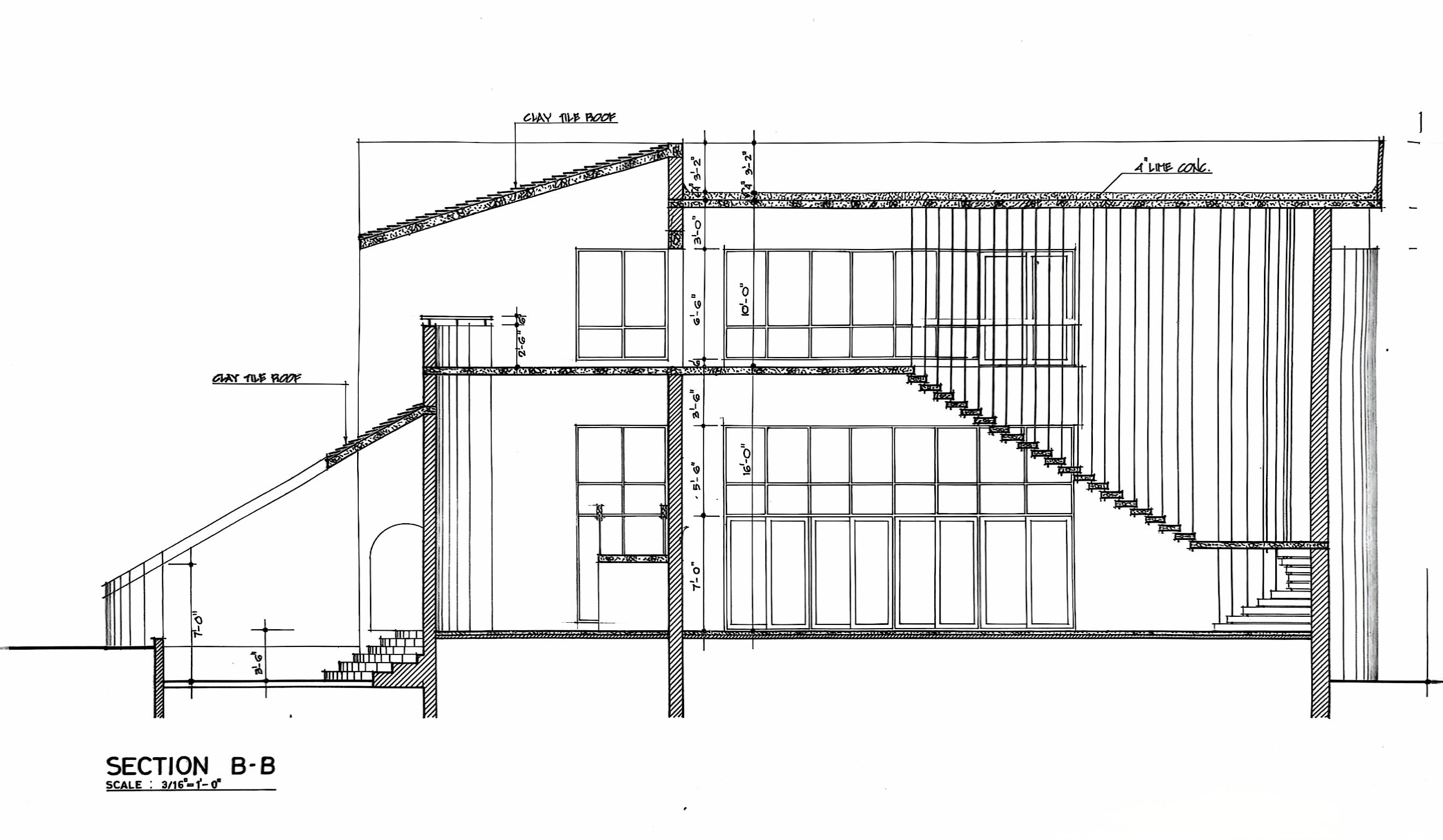
Hall room concept: from porch to entry lobby, a double-height hall room ends with hanging stairs supported by cable from waffle slab roof. Opening with a 14’x22’ swimming pool with a filter plant and a small guest house with a toilet. The other side has two plinths with dining and kitchen. Garage direct from entry and servant, above garage roof. Service stays connected on the 1st floor from the kitchen. The swimming pool is covered with horizontal louvers to 1st floor roof in a slope shape, giving an advantage to opening the view from 1st floor. Between voids of horizontal louvers providing both light and natural air.

1st floor from hall to cable stairs: every slab is hanging and connected with a cable, which is hanging from the roof. Providing a family lounge and a three-bedroom porch emerging out from the center of the building gives a feeling, with the lounge connecting out from the north. Clint expressed his feeling, saying that it looks like “Ma KalirJibba.”stfloor from hall to cable stairs, every slab hanging and connected with cablewhich is hanging from the roof. Providing a family lounge and three-bedroom porch emerging out from the center of the building gives a feeling, with the lounge connecting out from the north. Clint expressed his feeling, saying that it looks like “Ma KalirJibba”.

 

Now it is the Maldives Embassy.