No items found.
1
/
9

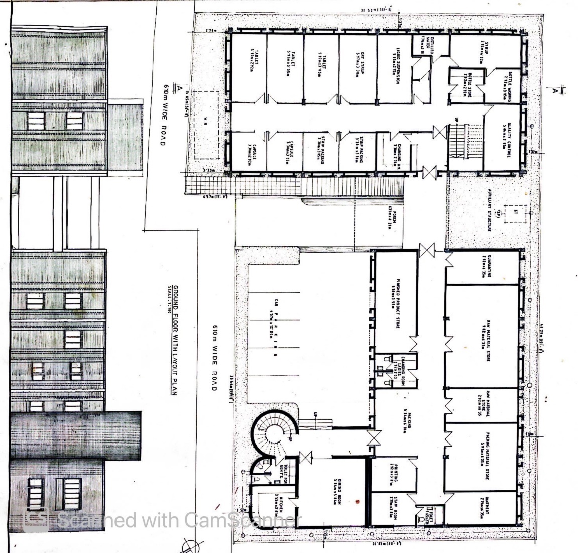
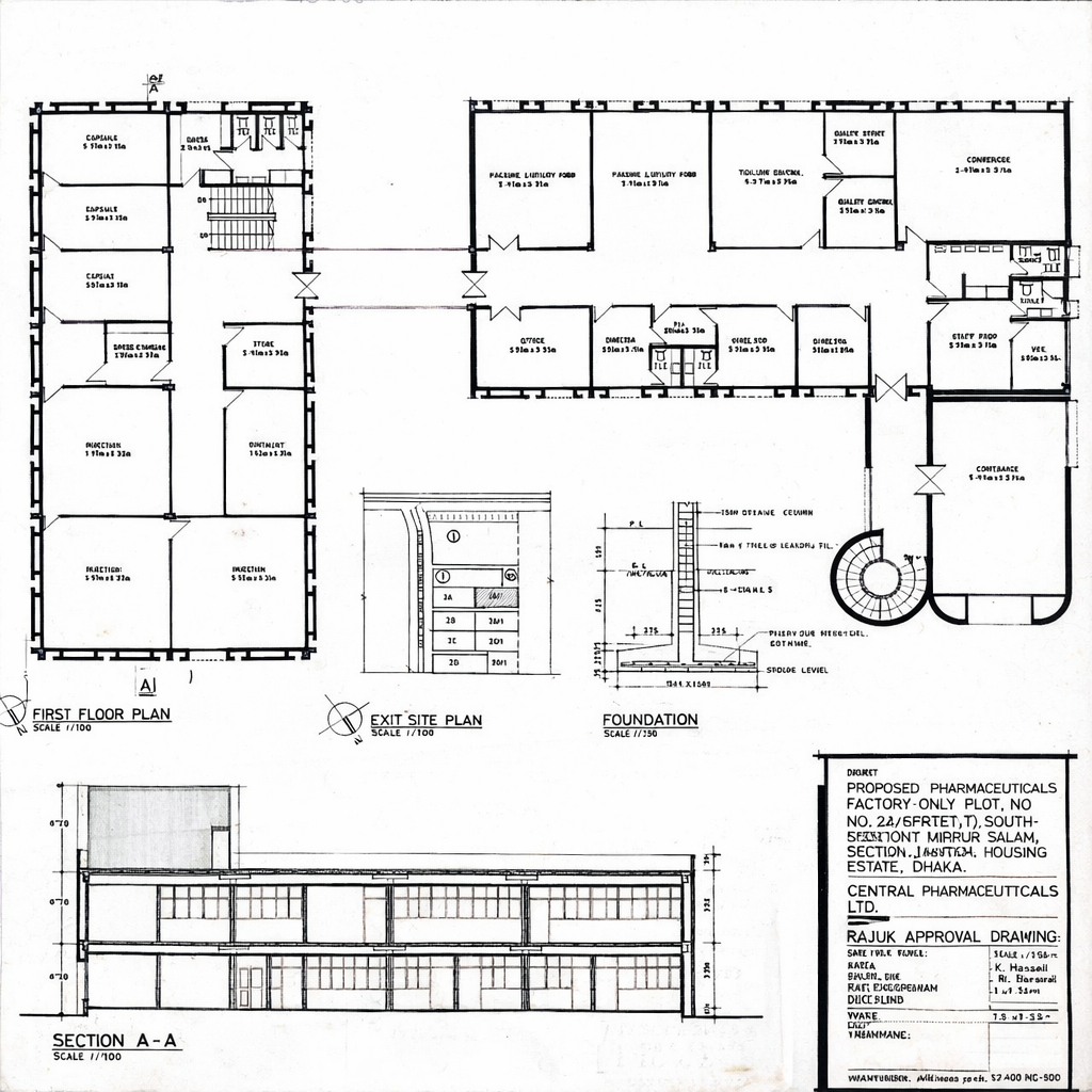
2 STORIED PHARMACEUTICALS FACTORY

Complate Date

Complete 1990

Location

Plot-2A/1(Part), South west of Darus salam,Section 1, Mirpur Housing Society.

Client

Central Pharmaceuticals Ltd.

Built Area

18500 sq ft

Achitects Design and Implementation

About Project